zavřít
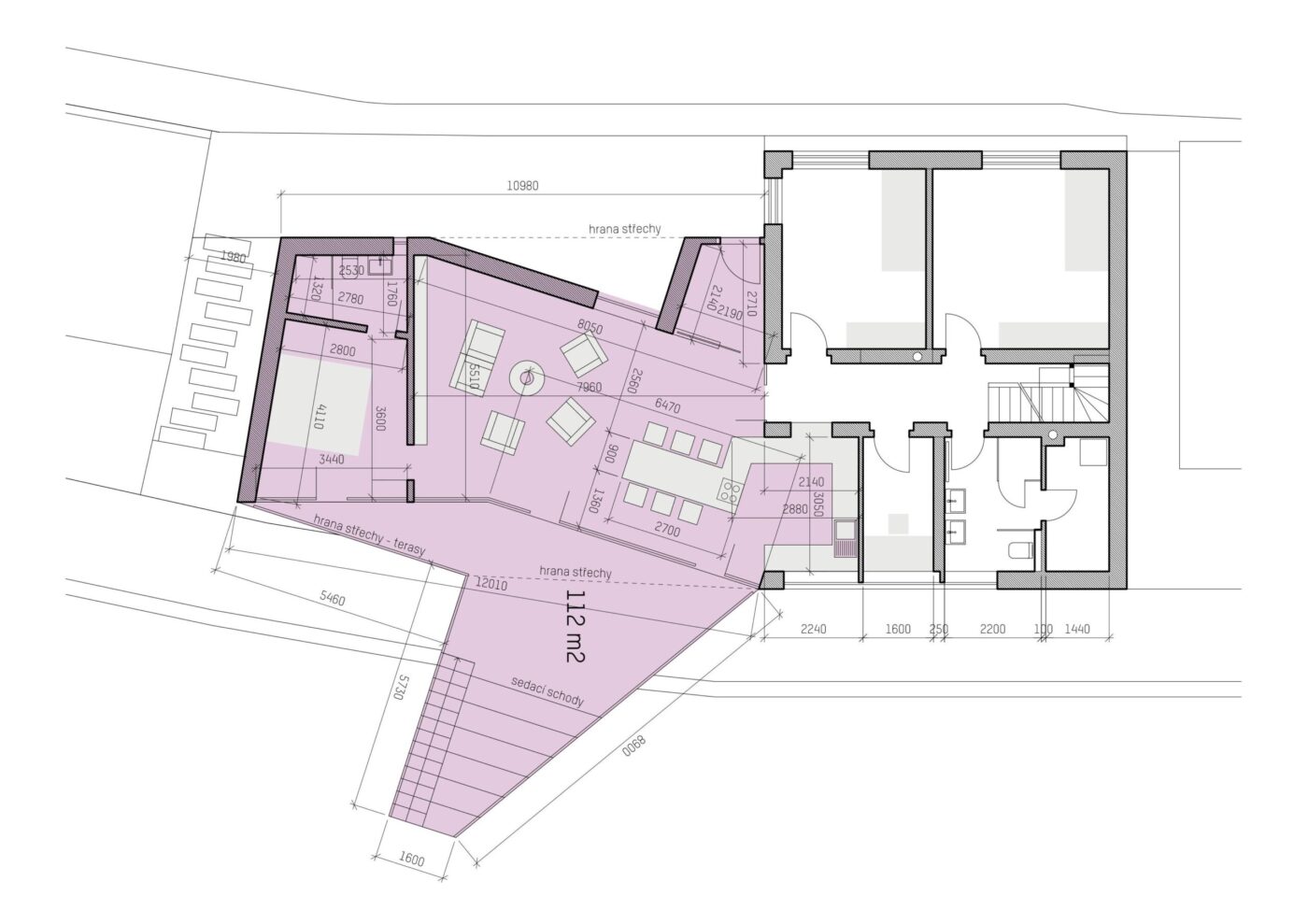
  • Rodinný dům Bojov

    místo: Bojov

    fáze: projekt

    2014

  • předchozí projekt

    Základní škola Chýně

    další projekt

    Sauna Cerekev

  • VŠECHNY PROJEKTY
  • Rekonstrukce
  • Interiéry
  • Bytové domy
  • Rodinné domy
  • Veřejné stavby
  • Soutěže
  • Urbanismus

STUDIO ARCHIHOLIK

studio@archiholik.cz

+420 777 868 238
+420 725 724 234

Janáčkovo nábřeží 61
Prague 5 – Malá Strana
15000
Česká Republika

mapa

 

facebook I instagram

 

Více o nás

"Obvykle architekti poskytují služby. Realizují to, co chtějí jiní lidé. To já nedělám. Rád rozvíjím využití budovy společně s klientem, v procesu, takže se postupem času stáváme inteligentnějšími." - Peter Zumthor

Petra Belicová

Architekt, jednatel společnosti

Josef Pfeifer

Architekt, jednatel společnosti

Spyridoula Sopiadou "Sisi"

Architekt